1036 E Airport RD

Panguitch, UT 84759

Panguitch, UT 84759

1036 E Airport RD

$1,299,000

MLS#: 26-268861

Status: Active

Listing provided by: Re/Max Properties

Listing agent phone: None

Last update: 2 months ago

On site: 3 months ago

Main image without alt text

About

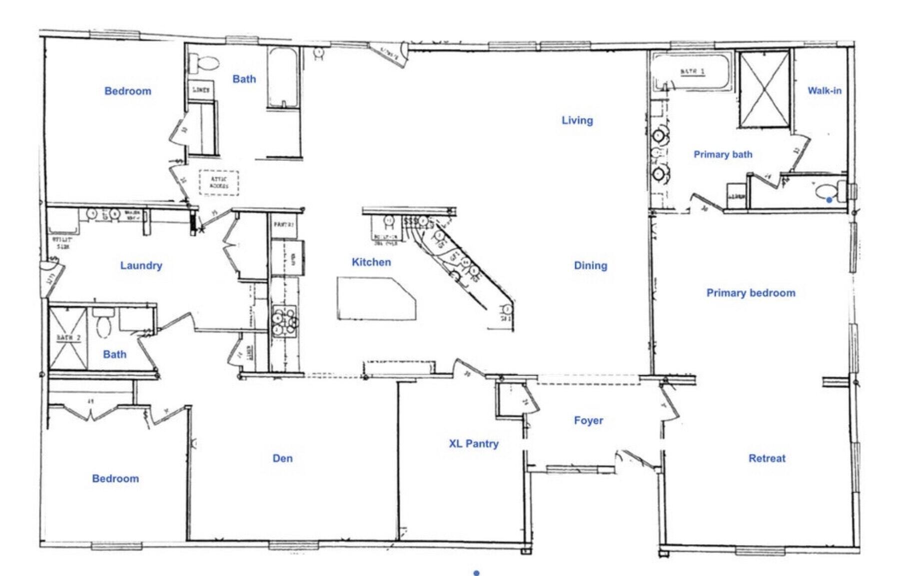
FARMING OPPORTUNITY! Set on just under 17.5 acres across two fully fenced parcels, this spacious 2,400 sq ft single-level ranch home offers three bedrooms and three full baths, designed for comfort, privacy, and wide-open living. A circular-style driveway wraps around the home, providing easy access and a true estate feel with an attached garage with room for 4 cars. The land package includes a productive 12.79-acre irrigated hayfield with gated entry, pipe irrigation, laser-leveled ground, and 45 dependable Long Canal water shares. The remaining 4.66 acres host the residence, offering peaceful seclusion and room to grow. Inside, the home features a bright, open floor plan with high-end finishes throughout, including stainless steel appliances, upgraded cabinetry, premium flooring, a built-in double oven with a large pantry. The primary suite includes a private bathroom and a spacious walk-in closet with two more bedrooms on the other side of the house and two more full bathrooms. Step outside to a generous 30' x 16' rear deck, perfect for entertaining or enjoying the surrounding landscape. Additional upgrades include a Nuvo water softener and filtration system, generator-ready wiring, and full perimeter fencing with gated access. Property amenities include horse corrals, oversized 10' x 10' dog kennels, and an attached 40' x 40' insulated and drywalled garage with 220 power. Multiple shipping containers provide extra storage, and established fruit treesapple, peach, plum, pear, and cherryadd to the property's self-sufficient appeal. With ample space for additional structures, gardens, or recreational use, this property is ideally located just minutes from Bryce Canyon and Red Canyon, offering quick access to hiking, horseback riding, mountain biking, Panguitch Lake, and extensive off-road trail systems.

Property

Beds

3

Full Baths

None

1/2 Baths

None

Year Built

2017

Sq.Footage

2,400

Features

Features & Amenities

Interior

  • Total Bedrooms

    3

  • Bathrooms

    N/A

  • Above Grade Finished Area

    2400.0

  • Cooling YN

    YES

  • Cooling

    Ceiling Fan(s), Central Air

  • Fireplace YN

    YES

  • Heating YN

    YES

  • Heating

    Wood Stove, Wood, Electric, Propane

  • Pet friendly

    N/A

Exterior

  • Garage

    Yes

  • Garage spaces

    4

  • Construction Materials

    Masonite

  • Parking

    Attached, Garage

  • Patio and Porch Features

    Deck

  • Pool

    No

  • View

    Mountain(s)

Area & Lot

  • Lot Features

    Level

  • Lot Size(acres)

    17.45

  • Lot Size(square feet)

    760122.0

  • Property Type

    Residential

  • Property Sub Type

    Single Family Residence

Price

  • Sales Price

    $1,299,000

  • Tax Amount

    $2,434.56

  • Zoning

    Residential

  • Sq. Footage

    2, 400

  • Price/SqFt

    $541

HOA

  • Association

    No

School District

  • Elementary School

    Out of Area

  • Middle School

    Out of Area

  • High School

    Out of Area

Property Features

  • New Construction

    NO

  • Foundation Details

    Concrete Perimeter

  • Senior Community YN

    NO

  • Sewer

    Septic Tank

  • Water Source

    Well, Private

Schedule

Schedule a Showing

Showing scheduled successfully.

What is 3 + 4 ?


Change time

Mortgage calculator

Estimate your monthly mortgage payment, including the principal and interest, property taxes, and HOA. Adjust the values to generate a more accurate rate.

Your payment

Principal and Interest:

$

Property taxes:

$

HOA fees:

$

Total loan payment:

$

Total interest amount:

$

Location

  • County

    Garfield

  • Elementary School

    Out of Area

  • Middle School

    Out of Area

  • High School

    Out of Area

Listing Courtesy of Landon Anglin , Re/Max Properties

RealHub Information is provided exclusively for consumers' personal, non-commercial use, and it may not be used for any purpose other than to identify prospective properties consumers may be interested in purchasing. All information deemed reliable but not guaranteed and should be independently verified. All properties are subject to prior sale, change or withdrawal. RealHub website owner shall not be responsible for any typographical errors, misinformation, misprints and shall be held totally harmless.

Agent Summer Luke

Summer Luke

Principal Broker | Realtor®

Call Summer today to schedule a private showing.


* Listings on this website come from the FMLS IDX Compilation and may be held by brokerage firms other than the owner of this website. The listing brokerage is identified in any listing details. Information is deemed reliable but is not guaranteed. If you believe any FMLS listing contains material that infringes your copyrighted work please click here to review our DMCA policy and learn how to submit a takedown request.© 2024 FMLS.

Properties

Related properties

Spacious cabin just minutes from Panguitch Lake. 5 bedrooms, 4 baths, a bunk room in the finished basement, a spacious kitchen and dining area that seats 18. A massive 3-car garage for all your outdoor toys. Currently being ran as a Vacation Rental with bookings in place for ready profit. This is the perfect basecamp for outdoor adventure. Whether you're into ATVing, skiing, hiking, or snowmobiling, this cabin puts you at the heart of it all: only 20 minutes to Brian Head Resort, 5 min to Panguitch Lake, 50 minutes to Bryce Canyon, and 25 minutes to Duck Creek Village. Plus, it offers year-round access! Built for comfort and convenience, this cabin features modern upgrades like Nest thermostats, Ring cameras, and two cozy lofts. With RV parking, hookups, and nearly 1.5 acres of land, this property is your private getaway. Recent renovations include new flooring throughout, stainless steel appliances, and updated lighting. Can be sold fully furnished, it's move-in ready-perfect as a vacation rental or second home. The original cabin was built in 1989, with a large addition added in 2000. Four parcels are included. Buyer to verify all information.
#2154695

Panguitch

680 W ARROWHEAD DR

5 Beds

3 Baths

4,384 Sq.Ft.

$1,075,000

MLS#: 2154695

Stunning, spacious cabin just minutes from Panguitch Lake. 5 bedrooms, 4 baths, a bunk room in the finished basement, a spacious kitchen and dining area that seats 18. A massive 3-car garage for all your outdoor toys. Currently being ran as a Vacation Rental with bookings in place for ready profit. This is the perfect basecamp for outdoor adventure. Whether you're into ATVing, skiing, hiking, or snowmobiling, this cabin puts you at the heart of it all: only 20 minutes to Brian Head Resort, 5 min to Panguitch Lake, 50 minutes to Bryce Canyon, and 25 minutes to Duck Creek Village. Plus, it offers year-round access! Built for comfort and convenience, this cabin features modern upgrades like Nest thermostats, Ring cameras, and two cozy lofts. With RV parking, hookups, and nearly 1.5 acres of
#26-271870

Panguitch

680 W Arrowhead DR

5 Beds

None Baths

4,384 Sq.Ft.

$1,075,000

MLS#: 26-271870

Perched above the town of Panguitch, this stunning property offers 360 degree views, abundant open space, and generous acreage. The custom home is complemented by a large detached garage and workshop-perfect for hobbies, storage, or creative pursuits.
#26-271345

Panguitch

995 S 230 E

4 Beds

None Baths

4,366 Sq.Ft.

$1,500,000

MLS#: 26-271345

Price reduced
Perched above the town of Panguitch, this stunning property offers A MILLION DOLLAR VIEW,  Abundant open space, and generous acreage. The custom home is complemented by a large detached garage and workshop- perfect for hobbies, storage, or creative pursuits.
#2150417

Panguitch

995 S 230 E

4 Beds

2 Baths

4,366 Sq.Ft.

$1,249,000

MLS#: 2150417

Price reduced
VIEWS!! VIEWS!! VIEWS!! Welcome to your new home where nature, wildlife & the STUNNING VIEWS will surround you. This home is within minutes to Bryce Canyon National Park which gives access to many trails for biking, hiking, horseback & OHV riding. Just 5 miles South of the town of Panquitch. Close to Henry Mountains, Casto Canyon & Red Canyon. Sevier River runs just below you across Hwy 89. Sit by the campfire or on the front porch to be mesmerized by the dark skies & stars. Plenty of room to add a shop or barn. No HOA and you have animal rights with almost 10 acres to enjoy with no close neighbors. Truly a home where you can enjoy the great outdoors, peace & quiet.
#25-258915

Panguitch

1915 E Bailey Acres DR

4 Beds

None Baths

2,908 Sq.Ft.

$1,150,000

MLS#: 25-258915

FARMING OPPORTUNITY! Set on just under 17.5 acres across two fully fenced parcels, this spacious 2,400 sq ft single-level ranch home offers three bedrooms and three full baths, designed for comfort, privacy, and wide-open living. A circular-style driveway wraps around the home, providing easy access and a true estate feel with an attached garage with room for 4 cars.
The land package includes a productive 12.79-acre irrigated hayfield with gated entry, pipe irrigation, laser-leveled ground, and 45 dependable Long Canal water shares. The remaining 4.66 acres host the residence, offering peaceful seclusion and room to grow. Inside, the home features a bright, open floor plan with high-end finishes throughout, including stainless steel appliances, upgraded cabinetry, premium flooring, a built-in double oven with a large pantry. The primary suite includes a private bathroom and a spacious walk-in closet with two more bedrooms on the other side of the house and two more full bathrooms. Step outside to a generous 30' x 16' rear deck, perfect for entertaining or enjoying the surrounding landscape.
Additional upgrades include a Nuvo water softener and filtration system, generator-ready wiring, and full perimeter fencing with gated access. Property amenities include horse corrals, oversized 10' x 10' dog kennels, and an attached 40' x 40' insulated and drywalled garage with 220 power. Multiple shipping containers provide extra storage, and established fruit treesapple, peach, plum, pear, and cherryadd to the property's self-sufficient appeal.
With ample space for additional structures, gardens, or recreational use, this property is ideally located just minutes from Bryce Canyon and Red Canyon, offering quick access to hiking, horseback riding, mountain biking, Panguitch Lake, and extensive off-road trail systems.

1036 E Airport RD

Message successfully sent.

I agree to receive email communication and understand I can unsubscribe at any time.

I agree to be contacted by OnX Realty via call, email, and text for real estate services. To opt out, you can reply 'stop' at any time or reply 'help' for assistance. You can also click the unsubscribe link in the emails. Message and data rates may apply. Message frequency may vary. Privacy Policy

 - property

Send a message

Message successfully sent.

Preferred Agent

Reason for contacting?

I agree to receive email communication and understand I can unsubscribe at any time.

I agree to be contacted by OnX Realty via call, email, and text for real estate services. To opt out, you can reply 'stop' at any time or reply 'help' for assistance. You can also click the unsubscribe link in the emails. Message and data rates may apply. Message frequency may vary. Privacy Policy

Sign In Sign Out

Virtual Assistant

Would you like to take the next step with this property? We can help you schedule a showing or virtual tour, or send you more details.

Yes, I would like more information.

Thank You for Your Reply, One of Our Agents will contact you as soon as possible

No, maybe later.

Thank you, you can always contact me via email, phone number or through the contact form.

Realhub AI

Lucy - Your AI-Powered Realtor

Update Your Temporary Password

Personalize your search

Enter your email and we'll notify you immediately when new listings match what you're looking for.

or enter email address

Already have an account ? Login here

Continue your home search

I agree to receive communications and understand I can unsubscribe at any time.

I agree to be contacted by OnX Realty via call, email, and text for real estate services. To opt out, you can reply 'stop' at any time or reply 'help' for assistance. You can also click the unsubscribe link in the emails. Message and data rates may apply. Message frequency may vary. Privacy Policy

Already have an account ? Login here

We use cookies

We use cookies primarily for analytics to enhance your experience. By accepting, you agree to our use of these cookies. You can manage your preferences or learn more about our cookies policy.